Condominio Nuevo Renca
Departamentos de UF 2.450
Departamentos con subsidio automático DS19
VALOR DEL SUBSIDIO: $25.807.275*
CON UN AHORRO DE $3.970.350 Corresponde a UF 650 (monto en pesos fue calculado a valor UF $39.704 (actualizado al 02-02-2026)
Proyecto homologable con subsidio adjudicado DS01 tramos 2 y 3
No contamos con cupos para subsidio DS49 ni DS01 tramo 1
Vida de Barrio
En Condominio Nuevo Renca
Modernos departamentos de 1, 2 y 3 dormitorios y 1 y 2 baños en excelente ubicación en Renca.
Condominio Nuevo Renca cuenta con 196 departamentos, en una torre de 8 pisos.
Cuenta con una placa comercial en primer piso de 6 locales comerciales, áreas verdes, espacios recreativos y deportivos en el acceso al condominio, que aseguran la accesibilidad, seguridad y visibilidad de los mismos
Espacios para todos
Con un equipamiento pensado en disfrutarlo día a día
Modelos
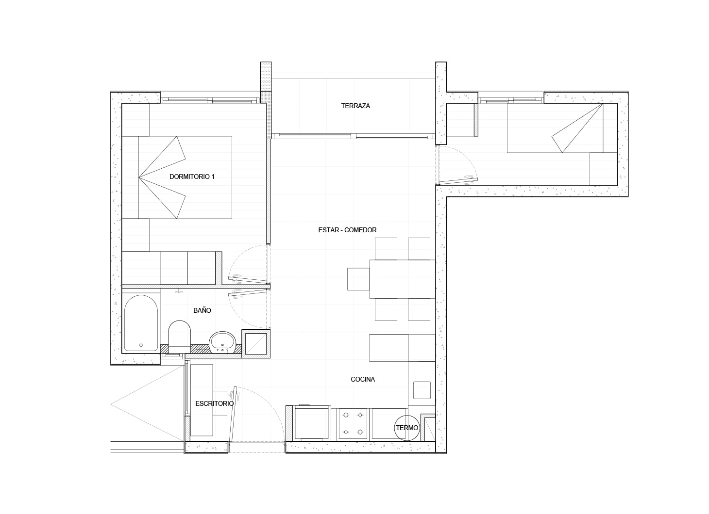
Modelos de 2 y 3 dormitorios y 1 - 2 baños ¿Cuál eliges?
TIPO E1 (1D1B)
UF 2.450
Superficie Interior: 39,87 m²
Superficie Logia: 0,00 m²
Superficie balcón: 3,37 m²
Superficie Total: 43,24 m²
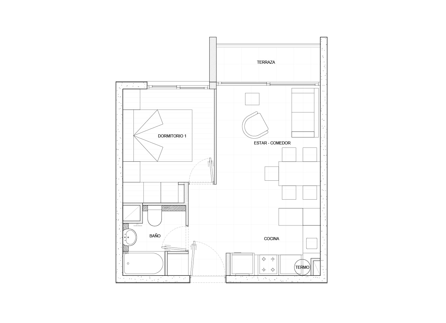
TIPO E2 (1D1B)
UF 2.450
Superficie Interior: 33,86 m²
Superficie Logia: 0,00 m²
Superficie balcón: 3,45 m²
Superficie Total: 37,31 m²
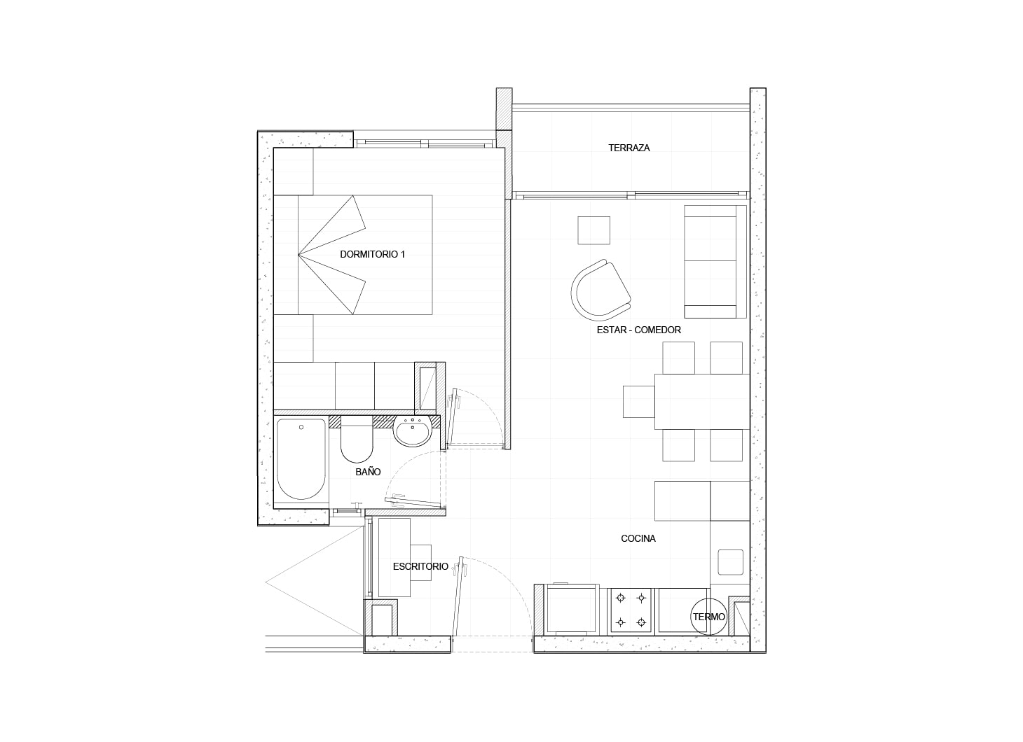
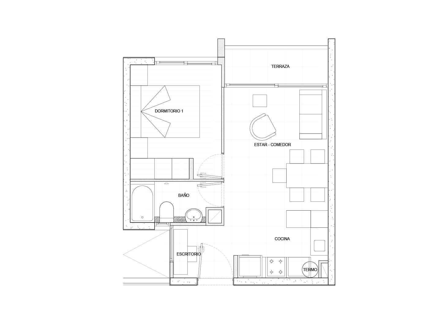
TIPO F (1D1B)
UF 2.450
Superficie Interior: 33,64 m²
Superficie Logia: 0,00 m²
Superficie balcón: 3,52 m²
Superficie Total: 37,16 m²
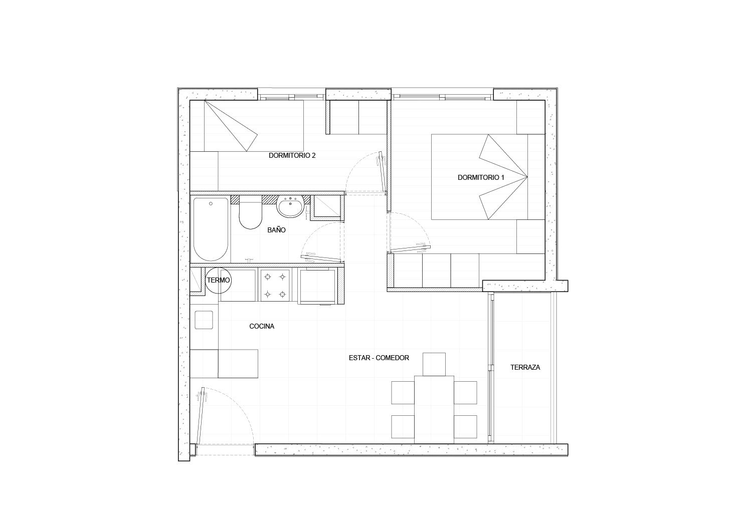
TIPO E (2D1B)
UF 2.700
Superficie Interior: 39,87 m²
Superficie Logia: 0,00 m²
Superficie balcón: 3,37 m²
Superficie Total: 43,24 m²
TIPO F1 (2D1B)
UF 2.700
Superficie Interior: 38,54 m²
Superficie Logia: 0,00 m²
Superficie balcón: 3,06 m²
Superficie Total: 41,6 m²
TIPO D-DV (2D2B)
UF 2.800
Superficie Interior: 46,17 m²
Superficie Logia: 1,81 m²
Superficie balcón: 3,302 m²
Superficie Total: 51,28 m²
TIPO CE-CeV (3D2B)
UF 2.800
Superficie Interior: 51,46 m²
Superficie Logia: 2,14 m²
Superficie balcón: 3,36 m²
Superficie Total: 56,96 m²
Equipamiento
y Terminaciones
- Living comedor y cocina integrada
- Kit de cocina (Encimera, campana y horno)*
- Muebles de cocina*
- Piso fotolaminado en dormitorios
- Piso cerámico en living comedor
- Ventanas Termopanel en dormitorios
- Termo eléctrico de 120 o 150L*
*Disponibilidad dependiendo de tipología, preguntar a ejecutiva de ventas.
Ubicación
Privilegiada
- Nuevo Renca Condominio
- Colegio El Bosque de Renca
- Supermercado Unimarc
- CESFAM Bicentenario Renca
- Colegio Jacarandá
- Jardín Vicuña Mackenna
- Gimnasio Municipal Renca
- Mirador Cerro Colorado
- Futura estación de metro L7
gran conectividad
COLEGIO EL BOSQUE DE RENCA
- 2 min.
- 8 min.
SUPERMERCADO UNIMARC
- 2 min.
- 8 min.
CESFAM BICENTENARIO RENCA
- 2 min.
- 9 min.
- 15 min.
COLEGIO JACARANDÁ
- 3 min.
- 9 min.
JARDÍN VICUÑA MACKENNA
- 3 min.
- 9 min.
GIMNASIO MUNICIPAL RENCA
- 4 min.
- 8 min.
PISCINA MUNICIPAL DE RENCA
- 4 min.
- 13 min.
- 15 min.
SUPERMERCADO LIDER
- 5 min.
- 9 min.
- 19 min.
COMPLEJO DEPORTIVO MIRAFLORES
- 6 min.
- 25 min.
- 30 min.
MIRADOR CERRO COLORADO
- 8 min.
- 21 min.
- 32 min.
Avance de obra
Glosario









